Rif: VA 2653
SANREMO
IMPERIA
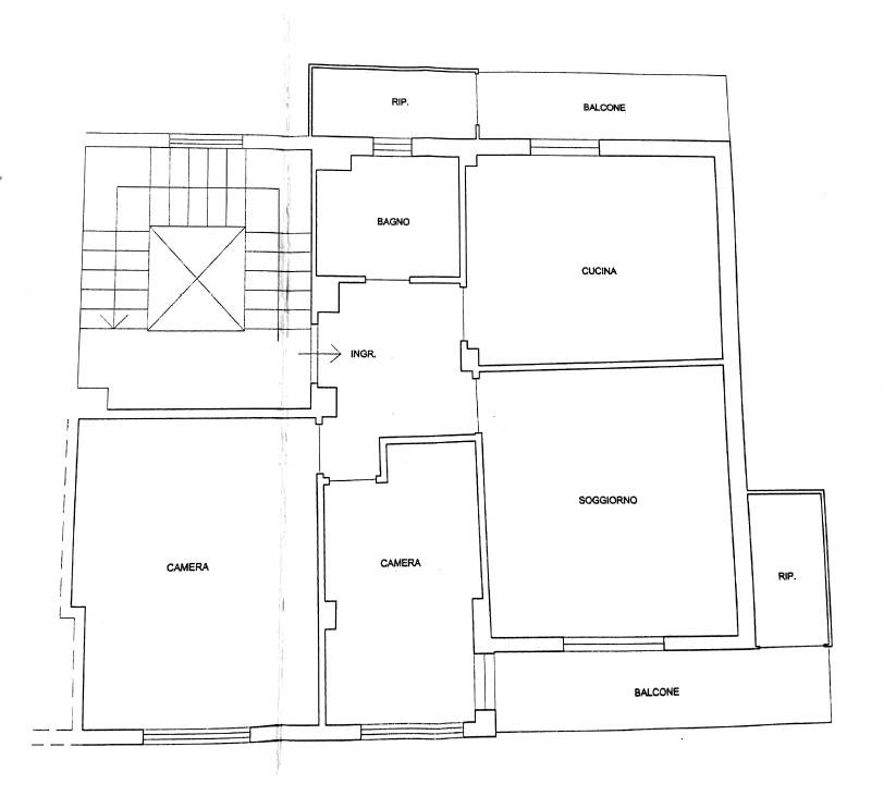
SANREMO adiacenze Corso Cavallotti - Nuova Stazione: a piano alto di moderno edificio, appartamento trilocale ristrutturato e con doppia esposizione. Vista mare. (Rif. VA 2653)
Per maggiori informazioni, non esitate a contattarci, oppure visitate il nostro sito www.mariepartners.com
Per maggiori informazioni, non esitate a contattarci, oppure visitate il nostro sito www.mariepartners.com

