Rif: VA 2545
SANREMO
IMPERIA
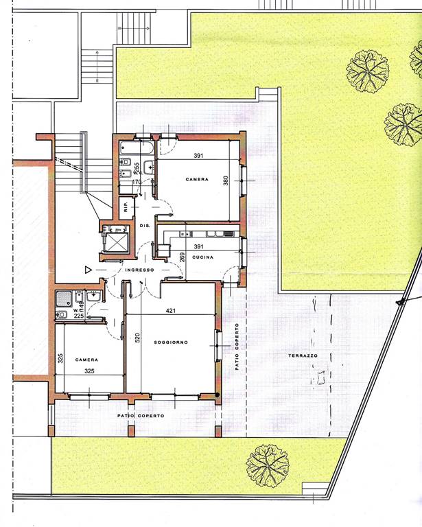
Sanremo Via Solaro: magnifico esempio di appartamento a piano giardino, in contesto moderno e signorile. Trattasi di luminoso quadrilocale in perfetto stato, con doppi servizi, ampio terrazzo con grande giardino privato, cantina e box auto. Termoautonomo e climatizzazione. L''immobile si trova immerso nel verde, all''interno di un signorile e moderno quartiere, comodo anche al Tennis Club e al Campo Ippico. (rif. VA 2545). Per maggiori informazioni, non esitate a contattarci, oppure visitate il nostro sito www.mariepartners.com

